Portada » Portfolio Items » DHL Casa Club

DHL Casa Club

Puntarenas, Costa Rica. 2015

Descripción general

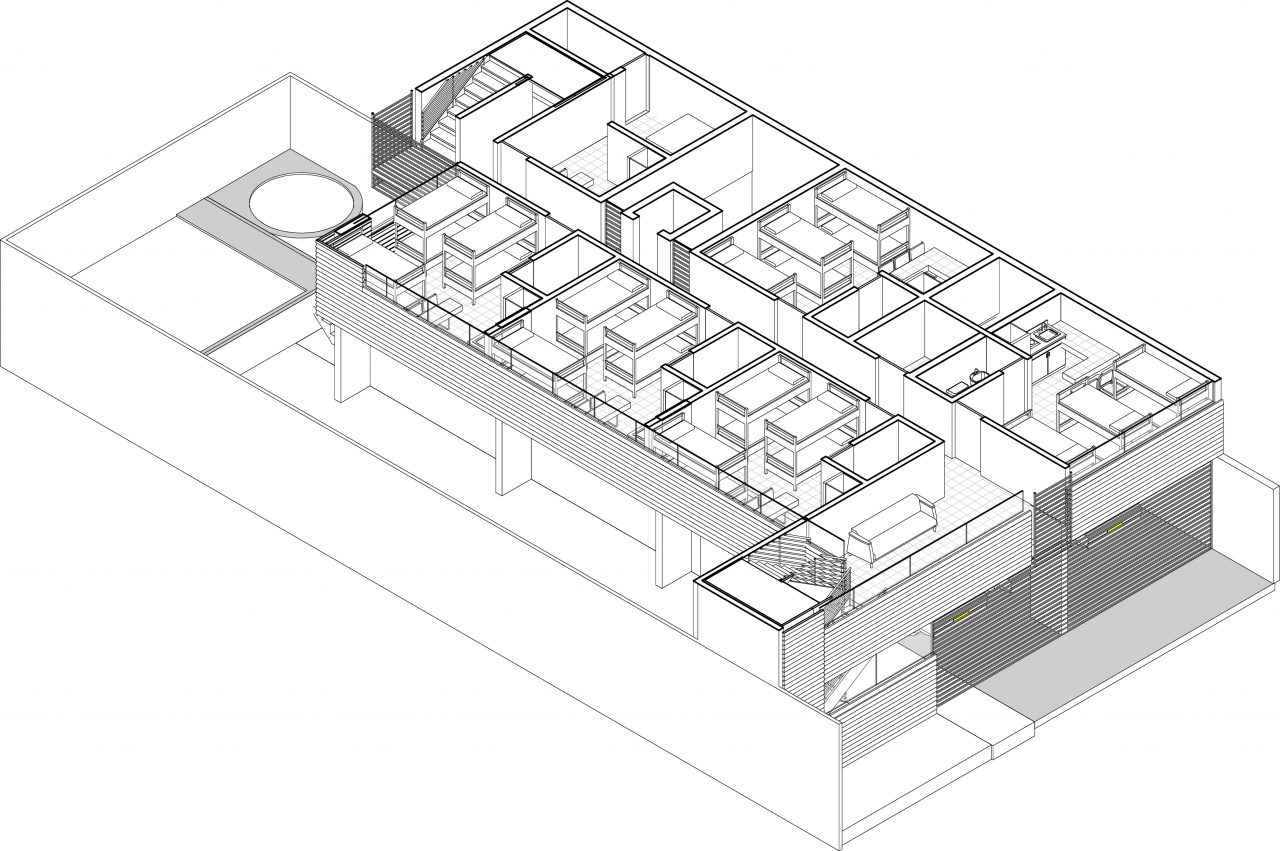
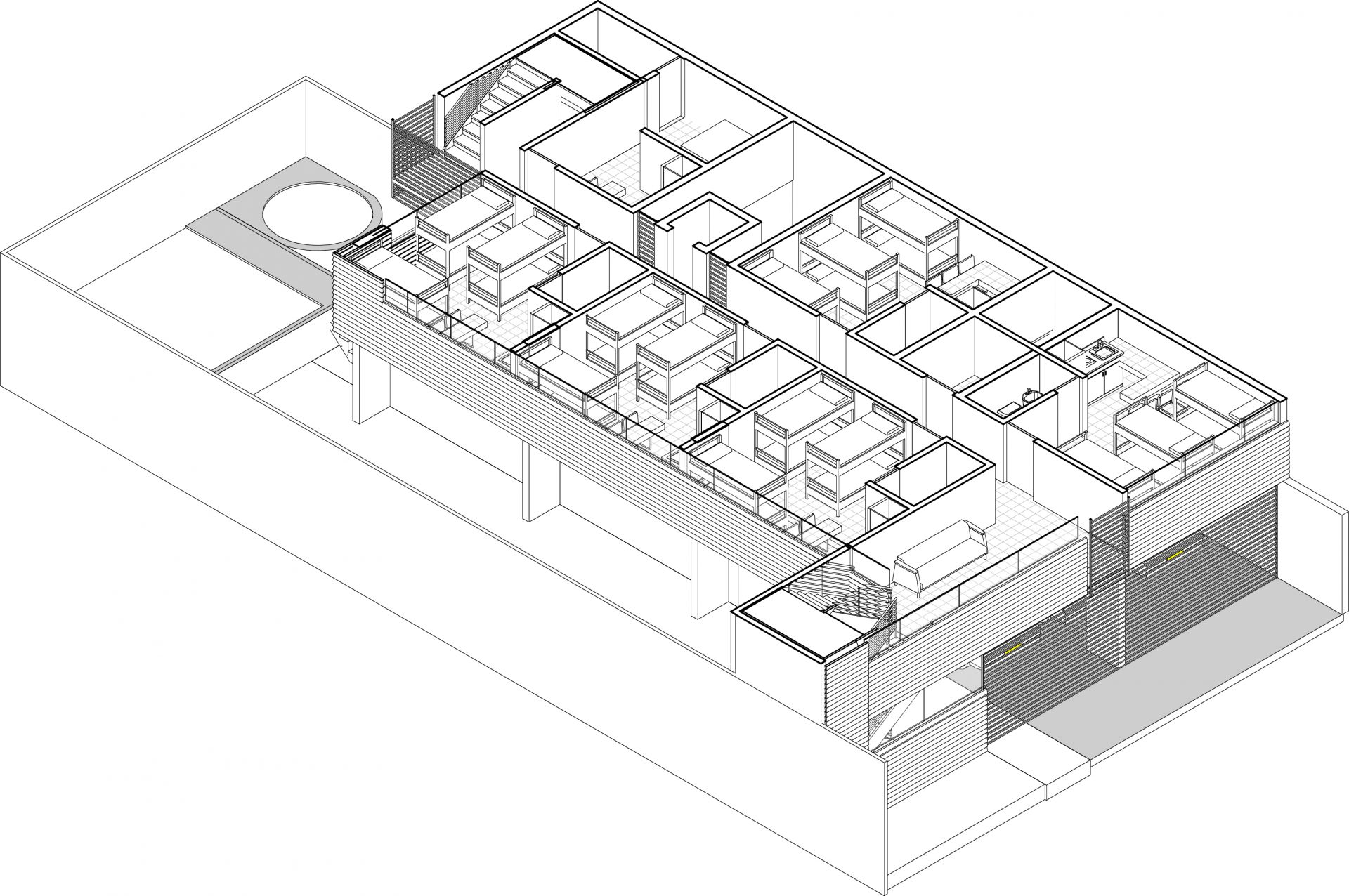
Ubicado en la denominada “lengüeta” de Puntarenas, una delgada franja urbana que se extiende entre el Golfo y el Pacífico, el proyecto DHL Casa Club aprovecha la condición insular del sitio para consolidar una pieza arquitectónica compacta y vertical. El volumen, de tres niveles, responde a un lote de proporciones limitadas con una implantación precisa que libera el primer plano visual hacia el mar y articula de forma clara las áreas de hospedaje, esparcimiento y recreación.

El programa incluye nueve habitaciones, piscina, parqueo, terrazas y un salón multiuso, todos ellos orientados a mejorar la experiencia de bienestar de los usuarios. La zona superior se destina a la contemplación y al descanso, mientras que el salón abierto en el nivel intermedio se convierte en un mirador social hacia el paisaje costero. Así, la arquitectura no solo organiza un conjunto funcional, sino que también amplifica la relación con el entorno marino.

Las fachadas, definidas por franjas metálicas, permiten la ventilación cruzada y filtran la luz en movimiento, evocando el ritmo horizontal del horizonte. Estos recursos pasivos refuerzan el confort climático y reducen el consumo energético, respondiendo a la particularidad ambiental del sitio. Al mismo tiempo, la presencia del mar y la brisa se integra al interior, ofreciendo un espacio que celebra la geografía de Puntarenas.

El DHL Casa Club en Puntarenas trasciende su carácter de hospedaje corporativo para convertirse en un punto de encuentro y recreación. Con un lenguaje sobrio y contemporáneo, el proyecto establece un balance entre funcionalidad, paisaje y clima. La propuesta reafirma el valor del espacio compartido como catalizador de comunidad, proyectando una arquitectura activa, abierta y sensible al entorno.

Créditos

Diseño Arquitectónico: Luis Diego Barahona
Colaboradora: Karina Vindas