Portada » Portfolio Items » Madisa Agencia BOSCH

Madisa Agencia BOSCH

La Uruca, San José, Costa Rica. 2015

Descripción general

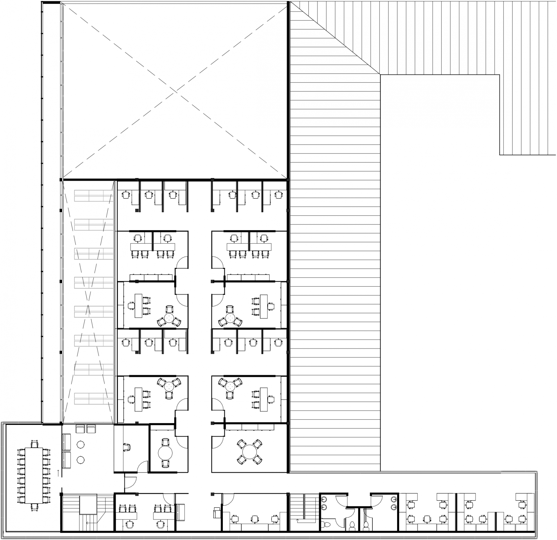
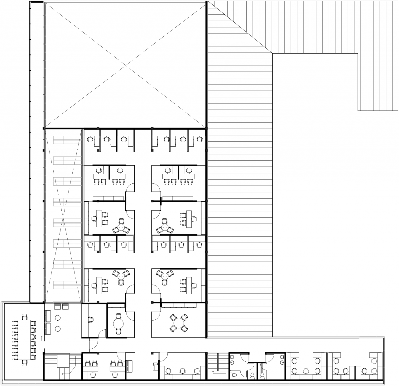
La remodelación de las oficinas BOSCH responde a la necesidad de ampliar y actualizar el conjunto existente, ubicado en una de las principales zonas industriales del país. El proyecto reorganiza las dinámicas internas de un inmueble que originalmente integraba un local comercial, oficinas administrativas y una bodega de gran escala.

La estrategia consiste en incorporar un volumen transversal en el segundo nivel que articula los componentes existentes, mejora las circulaciones y amplía la capacidad operativa del complejo. Este nuevo cuerpo flotante conecta con la zona de parqueo posterior y funciona como enlace entre las funciones corporativas, logísticas y comerciales del conjunto.

El volumen alberga oficinas, salas de reunión y un call center. Su disposición genera un recorrido funcional que jerarquiza los accesos y permite relaciones claras entre los distintos programas. En su fachada se proyecta una sala de reuniones saliente que actúa como hito urbano sobre una avenida de alto tránsito, otorgando al conjunto una presencia clara y contemporánea.

El tratamiento formal y cromático del volumen dialoga con el lenguaje visual de la marca. El acabado negro con tipografía roja hace eco directo de la gráfica de los productos BOSCH, consolidando una identidad arquitectónica coherente y legible desde lo urbano.

Como en el proyecto Findasense, la intervención explora cómo la arquitectura corporativa puede integrar funcionalidad, imagen y entorno. Según esta guía sobre diseño de oficinas, el espacio laboral contemporáneo debe ser adaptable, representativo y operativo.

La remodelación de las oficinas BOSCH reafirma el potencial de la arquitectura como medio para articular industria, identidad y experiencia cotidiana en entornos de alta demanda técnica.

Créditos

Diseño Arquitectónico: Luis Diego Barahona
Colaboradora: Karina Vindas
Visualización: Tatiana Chavarría
Área: 575 m²