Portada » Portfolio Items » Centro de Desarrollo Humano de Tirrases

Centro de Desarrollo Humano de Tirrases “La Cometa”

Tirrases, Curridabat, Costa Rica. 2018

Descripción general

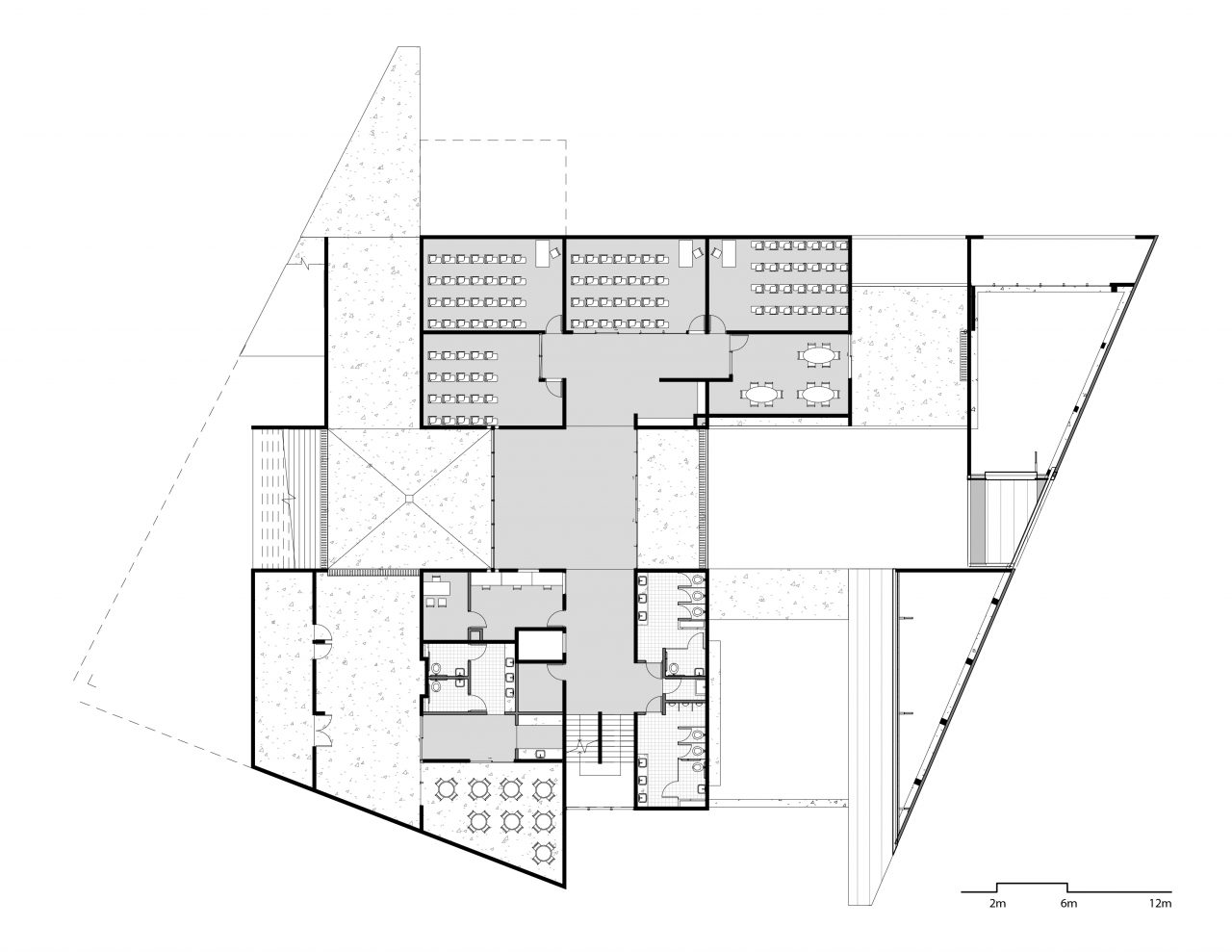
En el corazón de Tirrases, entre el Edificio La Cometa y el Paseo Peatonal Las Mercedes, se levanta este centro como nuevo punto de convergencia para la comunidad. Su arquitectura de tres niveles acoge una ludoteca, aulas y espacios para talleres. Estos usos se organizan alrededor de un núcleo central iluminado naturalmente, con visuales abiertas que promueven la conexión interior-exterior.

La propuesta articula patios internos, plazas exteriores y una escalinata central. Esta última comunica los niveles, pero también se transforma en un pequeño anfiteatro para el encuentro social y la expresión cultural. Además, los recorridos abiertos permiten una apropiación gradual del espacio, haciendo del centro un lugar accesible y acogedor.

El edificio —el primero de su tipo en Costa Rica— responde con sensibilidad al contexto urbano. Propone una estructura eficiente y de bajo mantenimiento, pensada para perdurar. La elección de materiales prioriza la sostenibilidad y la resistencia al uso intensivo, mientras que su disposición en el terreno optimiza el espacio disponible.

Por otro lado, la organización programática favorece la integración de distintos grupos etarios. La planta baja permite el acceso universal, mientras que los niveles superiores se abren hacia el entorno con terrazas y espacios comunes. Así, la arquitectura se convierte en plataforma de encuentro, aprendizaje y juego.

Más que un edificio, este centro encarna una infraestructura para el desarrollo humano. Su impacto trasciende lo físico: abre oportunidades, fortalece vínculos y promueve una ciudadanía activa y solidaria.

Créditos

Gestor de proyecto: Municipalidad de Curridabat
Unidad Ejecutora: Fundación Costa Rica-Canadá
Financiamiento: Ministerio de Vivienda y Asentamientos Humanos y BANHVI
Diseño arquitectónico: Luis Diego Barahona
Colaboradora: Karina Vindas
Ingeniería Estructural: FSA Ingeniería & Arquitectura
Ingeniería Electromecánica: FSA Electromecánica
Fotografías: Oscar Abarca, Roberto D´Ambrosio e Ingrid Johanning
Área: 2.558 m²